REQUEST A TOUR If you would like to see this home without being there in person, select the "Virtual Tour" option and your agent will contact you to discuss available opportunities.
In-PersonVirtual Tour

$ 17
$ 17
Key Details
Property Type Commercial
Sub Type Industrial
Listing Status Active
Purchase Type For Rent
Municipality Toronto W04
Subdivision Briar Hill-Belgravia
MLS Listing ID W12291071
Annual Tax Amount $6
Tax Year 2025
Property Sub-Type Industrial
Property Description
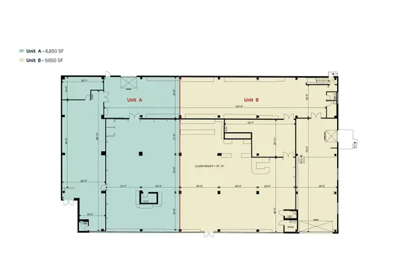
Prime direct exposure on to Castlefield, an arterial route to and from many high-end showrooms/retailers and adjacent affluent residential neighbourhoods including Forest Hill and Cedarvale, providing easy access to lucrative thru traffic. In the heart of the Designer District. Very clean and functional space. Can accommodate many different uses. Uses can include showroom, retail, office, industrial etc. Large windows provide abundant natural light. Great for any home decor use such as tile/flooring showroom, plumbing showroom, furniture, kitchen etc. Ample free customer parking available.
Location
Province ON
County Toronto
Community Briar Hill-Belgravia
Area Toronto
Zoning PE
Interior
Cooling Yes
Exterior
Utilities Available Available
Others
Security Features Yes
ParcelsYN No
Listed by CBRE LIMITED
Nearby Locations






